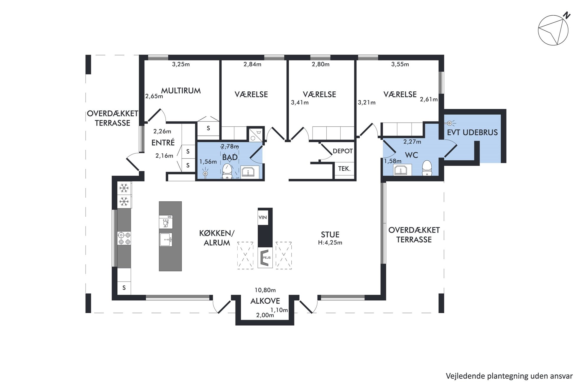
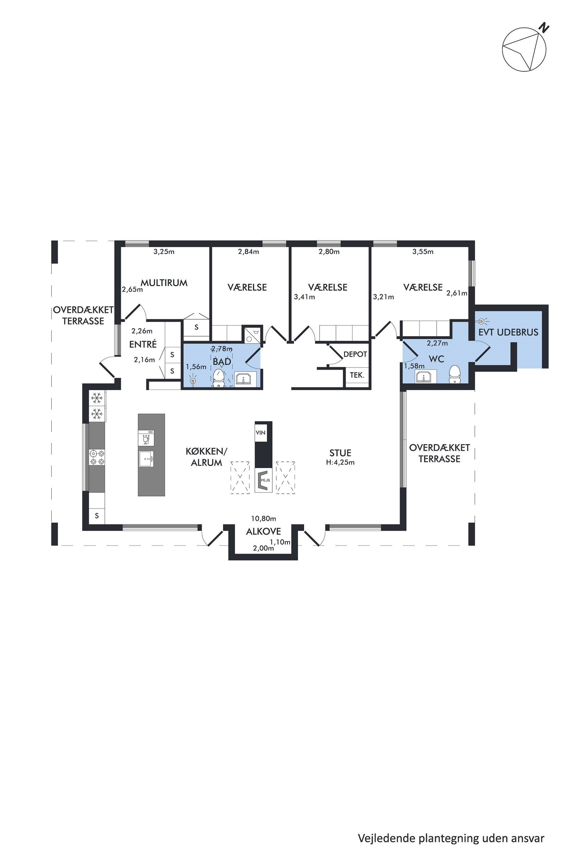
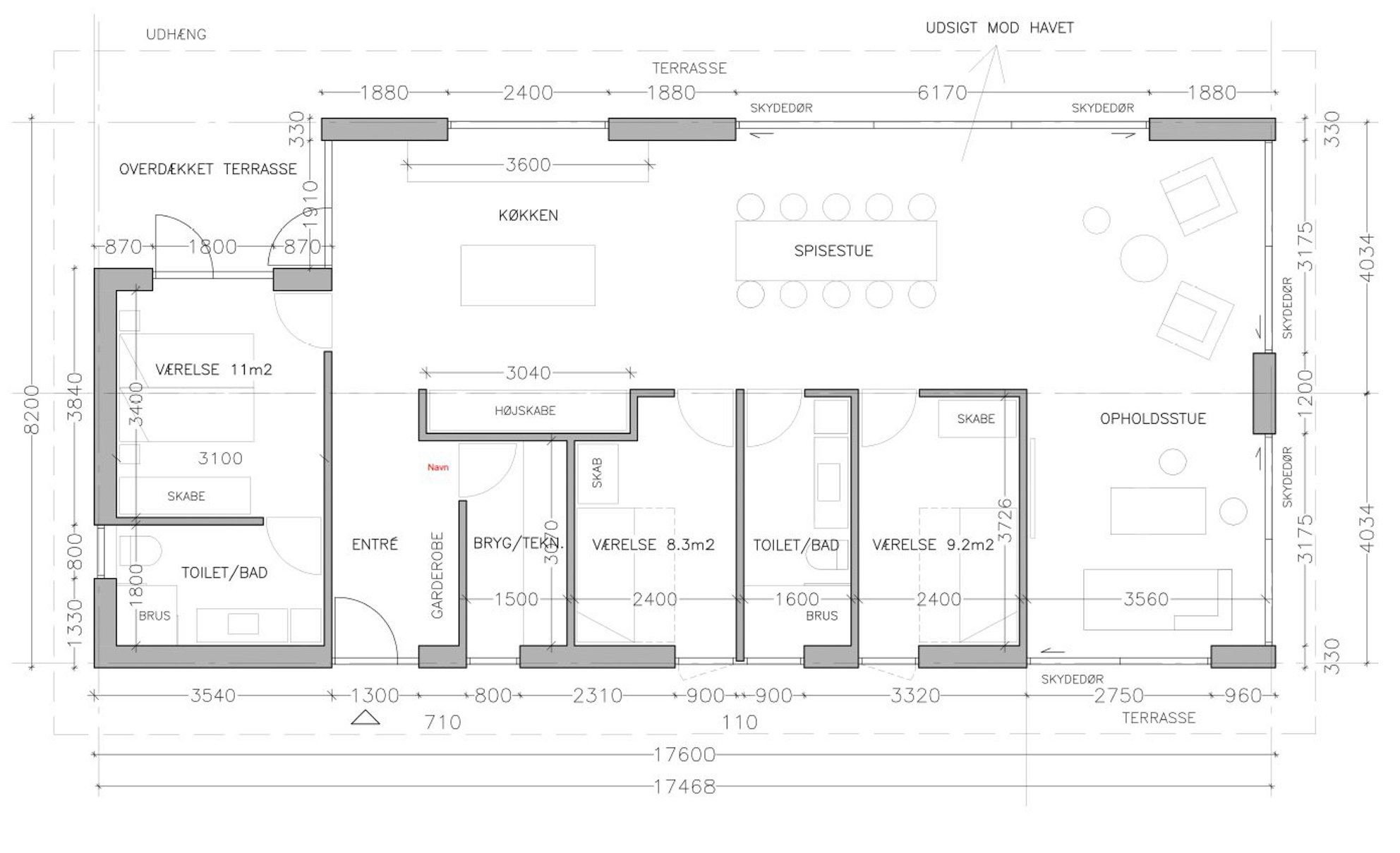
Sommerhuse til salg i Region Midtjylland
1.230 sommerhuse til salg i Region Midtjylland
Find din næste ejendomsmægler i Region Midtjylland
Hvad end du skal sælge eller købe, står vi klar til at hjælpe. Har du spørgsmål er du altid velkommen til at kontakte os.
home Juelsmindehome Hedensted - Løsninghome Horsenshome Ringkøbing-Skjernhome Samsøhome Odderhome Herning & Ikasthome Skanderborghome Malling-Bederhome Ryhome Hørninghome Tranbjerg - Solbjerghome Silkeborghome Galten - Skovbyhome Højbjerghome Viby - Hasselagerhome Aarhus City - bolig, projektsalg og udlejninghome Åbyhøj - Aarhus V - Brabrandhome Aarhus Øhome Aarhus Nordhome Tilst - Sabrohome Holstebrohome Risskovhome Hammelhome Egå - Skæringhome Lystrup - Hjortshøjhome Ebeltoft - Syddjurshome Bjerringbrohome Rønde - Syddjurshome Viborghome Randershome Grenaa - Norddjurshome Hobro - Mariagerfjord
Se alle ejendomsmæglere