Frisvadvej 7A, 6800 Varde

140 m2 villa

Kontant 898.000 kr.

Unik mulighed i Sygehuskvarteret - Byggeri allerede godkendt af Varde Kommune


Mulighed for at opføre moderne byhus i ét plan, med stor garage

Unik mulighed i Sygehuskvarteret – Byggeklar grund med godkendte tegninger midt i Varde
Drømmer du om at bygge nyt, men vil du ikke gå på kompromis med beliggenheden? Her er chancen for at skabe dit drømmehjem i hjertet af det eftertragtede og historiske Sygehuskvarter i Varde.


Beliggenheden bliver ikke bedre.....
Her bosætter du dig i "hjertet af Varde". Du får det bedste fra to verdener: Et roligt og etableret kvarter med sjæl, samtidig med at du er i gåafstand til alt, hvad midtbyen tilbyder. Indkøb, cafébesøg, skole og Vardes hyggelige handelsliv ligger lige om hjørnet.

Spring de svære processer over!
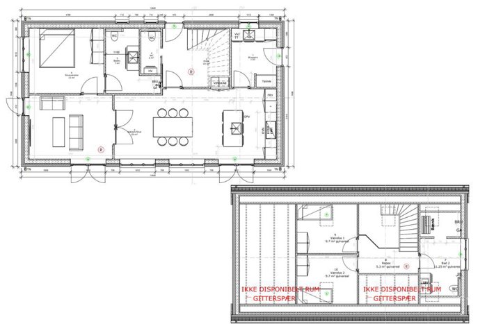
Den tidligere ejendom er allerede nedrevet, og grunden står klar til dit nye kapitel. Som en særlig fordel har nuværende ejer fået udarbejdet et komplet tegningsmateriale til en moderne og stilfuld bolig (se de afbillede visualiseringer).

Projektet er allerede godkendt af Varde Kommune, hvilket betyder, at du kan komme hurtigere i gang med byggeprocessen. Projektet er tegnet med respekt for kvarterets arkitektur, og den gældende lokalplan.



Ønsker du at opføre en anden type bolig, er der naturligvis også mulighed for det (kræver ny ansøgning til Varde Kommune). Ejendommen kan også opføres som ét plan, hvis dette ønskes. Her vil der være mulighed for at gøre grundplanen større. 



Kontakt home Varde, for mere information omkring denne spændende grund, i hjertet af Varde.
5Antal rum
1910Byggeår
473 m2Grundareal

Økonomi

Kontantpris

898.000 kr.

Ejerudgift pr. måned

2.247 kr.

Udbetaling

45.000 kr.

Brutto / Netto ekskl. ejerudgift

5.006 / 4.023 kr.

Udforsk mulighederne i området ved VardeVælg og se mere om området nær boligen i Varde. Områdevisningen tager udgangspunkt i boligens adresse med en radius på op til 20 km. Du kan zoome ind og ud på kortet - og det kan vises i fuldskærm for at få mere med.

Kontakt mig hvis du er interesseret eller har spørgsmål

Simon Hjørngaard Steffensen

home Varde

Partner & Salgschef, Ejendomsmægler

simonhs@home.dk

76888622

Gør boligjagten mere overskuelig med Klara app

Klara er din personlige boligassistent, der hjælper dig med at finde, købe eller sælge bolig på en enkel og effektiv måde. Med Klara har du altid adgang til boligmarkedet, uanset hvor du er - både det, der er til salg, og det, der ikke er.

 

Læs mere og hent Klara app

Ejer du allerede en bolig?

Når du overvejer at købe en anden bolig - så kan det være en fordel, hvis du har viden om salgsprisen og den eventuelle friværdi i din nuværende bolig. Jo mere friværdi du har - jo større muligheder har du i 'jagten' på din nye drømmebolig. Start med en gratis og uforpligtende salgsvurdering - og kom i gang med dine boligdrømme. 

Hvad kan jeg købe bolig for?

Regn ud, hvad du kan købe for, og match din økonomi med boliger til salg.

Få viden om dine købsmuligheder