logo
  • Få vurdering
  • Få din bolig vurderet
  • Find ejendomsmægler
  • myhome
  • Boligsalg
    • Salg af bolig
    • Salg af sommerhus
    • home SælgerGuide
    • Få 52 salgsfif
    • Boligordbog
  • Boligkøb
    • Køb af bolig
    • Køberkartotek
    • Køberrådgivning
    • Hvad kan jeg købe bolig for?
    • home KøberGuide
    • Køberfif: gode råd til boligkøb
    • Forældrekøb
    • Boligordbog
    • Boliger til salg
  • Lejebolig
    • Leje af bolig
    • Se boliger til leje
  • Projektsalg og -udlejning
  • Sommerhus - køb og salg
  • Liebhaveri
  • Bolignyt
  • Om home
    • Ledelse
    • Fakta om home
    • Job og karriere hos home
    • Pressekontakt og indeks
    • Produkter og services
    • Politikker
    • Erhvervsejendomme
    • Whistleblowing
    • Bekæmpelse af økonomisk kriminalitet

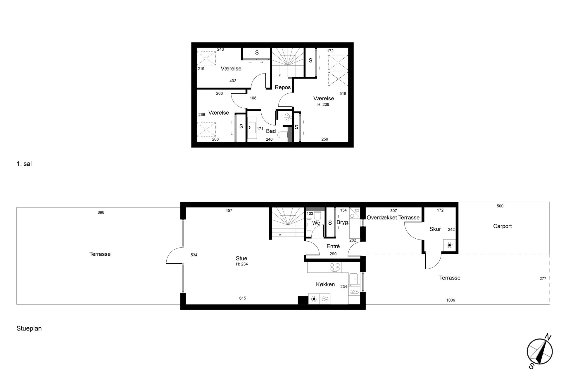
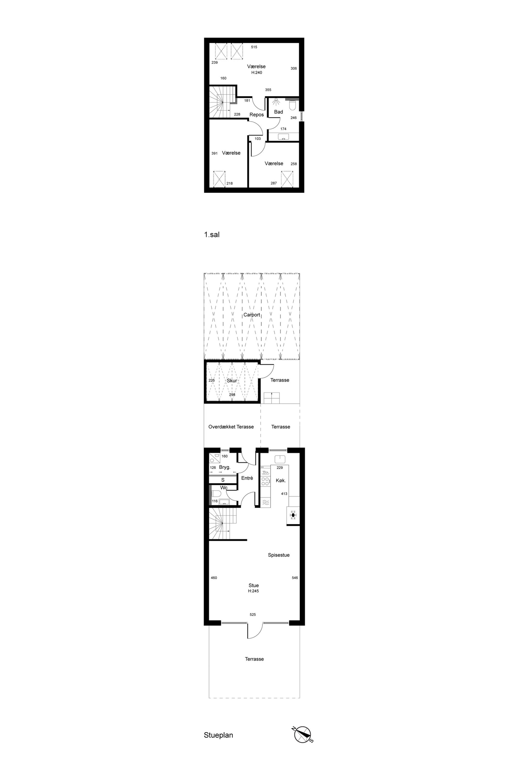
Rækkehuse til salg på Bjørnebo i 2665, Vallensbæk Strand

home.dk
Boliger til salg
Rækkehuse til salg
Region Hovedstaden
Vallensbæk Kommune
Vallensbæk Strand
Bjørnebo

1 rækkehuse til salg på Bjørnebo i 2665, Vallensbæk Strand

Købsaftale underskrevet
   

Bjørnebo 37, 2665 Vallensbæk Strand

Rækkehus

102 m2

4.150.000 kr.

  • 1
  • 1

Bliv opdateret på boligmarkedet og få indsigter, nyheder og inspiration

Bliv opdateret på boligmarkedet og få indsigter, nyheder og inspiration

Samtykke til at modtage nyheder og inspiration:
Med nyheder og inspiration fra home holder vi dig opdateret på fx nyt om boligmarkedet, nyt fra home, konkurrencer, gode råd og tilbud på køb/leje eller salg af bolig – samt informationer relateret hertil. Formålet er overordnet direkte markedsføring omkring boligkøb og -salg. Ved at tilmelde dig, samtykker du til at modtage nyheder/nyhedsbrev og beskeder med relevant markedsføring fra home via e-mail og/eller sms, samt eventuelt målrettet annoncering på Google, Facebook og Instagram. Nyhedsbrevets afsender er home a/s, og du samtykker til, at home a/s og relevante home-forretninger (samlet benævnt "home") registrerer og behandler dine personoplysninger: navn, e-mailadresse, postnummer, telefonnummer, dit brug af homes ydelser og - hvis du har givet samtykke til statistik- og markedsføringscookies - din adfærd på home.dk, og at home via den oplyste e-mailadresse og telefonnummer kontakter dig på mail og/eller sms med relevante informationer og nyheder omkring køb og salg af bolig, leje af bolig, projektsalg og - udlejning og nyt om boligmarkedet.

Tilbagekaldelse af samtykke: Jeg kan til enhver tid tilbagekalde mit samtykke ved at afmelde direkte i nyhedsbrevet eller i de informationsbeskeder jeg modtager via e-mail og/eller sms. Behandling af personoplysninger: home a/s og relevante home-forretninger (samlet benævnt "home") registrerer og behandler oplysninger om mit navn, e-mailadresse, postnummer, telefonnummer, IP-adresse, oplysninger om mine interesser, geografiske placering, min brug af homes ydelser og - hvis jeg har givet samtykke til statistik- og markedsføringscookies - min adfærd på home.dk. Anvendelse af sporingsteknologier: Som en del af tilrettelæggelsen af kommunikationen til dig, dækker samtykket også homes brug af sporingsteknologi fx pixels, der analyserer, om homes nyhedsbreve åbnes og læses, og hvilke links der klikkes på, ligesom pixels også får adgang til information om udstyr, operativ- og mailsystem og via din IP-adresse, det geografiske område, du er i, når du tilgår og klikker i nyhedsmails og/eller tilsendte nyheder og beskeder. 

Læs mere om homes behandling af personoplysninger i homes privatlivspolitik her
Se den fulde liste med de op til 175 home ejendomsmæglerforretninger her

Find ejendomsmægler

Nærmeste ejendomsmægler
Ejendomsmægler København
Ejendomsmægler Aarhus
Ejendomsmægler Odense
Ejendomsmægler Aalborg

Skal du sælge bolig?

Salg af bolig
Salg af sommerhus
Salg af liebhaveri
Salg og udlejning af projekter
Få vores salgsfif
Få home SælgerGuide

Skal du købe eller leje bolig?

Køb af bolig
Boliger til salg
Køb af sommerhus
Køberrådgivning
Køberkartotek
Få home KøberGuide
Hvad kan jeg købe bolig for?
Forældrekøb
Boligprojekt: køb og leje
Boliger til leje

Kom godt hjem med home

Bolignyt
Om home
Job og karriere hos home
Presse
home Boligbrief
Gratis bøger om flytning
Fif til en god flytning
Boligordbog
myhome
Privatlivspolitik
Cookie- & privatlivspolitik
logo
Ejendomsmæglerkæde for Danske Bank koncernen